[practice] Gallieni
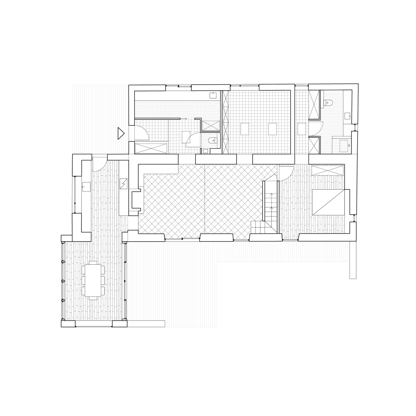
Extension + rénovation d’une ancienne ferme maraîchère à Quimper.
En co-traitance avec Brieuc Le Coz, suivi de chantier par Camille Artur.
Responsable de projet : Brieuc Le Coz
📸: Pascal Léopold
Extension + rénovation d’une ancienne ferme maraîchère à Quimper.
En co-traitance avec Brieuc Le Coz, suivi de chantier par Camille Artur.
Responsable de projet : Brieuc Le Coz
📸: Pascal Léopold
📸: Vincent Hoel